Mieszkanie Leszczynki, ul. Działdowska 3a
Działdowska 3a, Leszczynki, Gdynia, pomorskie
- 89,12 m²
Biuro sprzedaży
Skontaktuj się
Mieszkanie Leszczynki, ul. Działdowska 3a
Działdowska 3a, Leszczynki, Gdynia, pomorskie
zaktualizowane:
26 marca 2026
Mieszkanie Leszczynki, ul. Działdowska 3a
Inwestycja: Morska Vita
Zaktualizowane: 26 marca 2026
89,12 m²
III kwartał 2028
13/17
4
-
deweloperski
Zobacz na mapie
Termin realizacji:
III kwartał 2028Piętro:
13/17Liczba pokoi:
4Miejsce postojowe:
-Stan mieszkania:
deweloperskiSzczegóły ogłoszenia
- Typ oferty: mieszkanie na sprzedaż
- Termin realizacji: III kwartał 2028
- Status oferty: dostępne
- Rynek: pierwotny (oferta dewelopera)
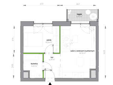
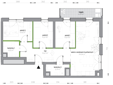
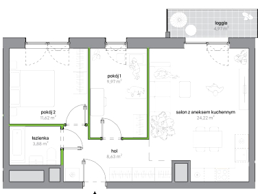
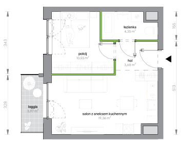
- Charakterystyka mieszkania: 89,12 m², 4 pokoje, 1 łazienka; stan: deweloperski
- Budynek: blok mieszkalny
- winda
- Rozkład mieszkania: piętro 13/17, jednopoziomowe
- Powierzchnia dodatkowa: taras (14,5 m²)
- Kuchnia: aneks kuchenny
- Źródło: oferta dewelopera: Develia, zaktualizowane: 26.03.2026
- sygnatura ogłoszenia: 2.13.M02
Lokalizacja
- Inwestycja: Morska Vita
- Adres: Działdowska 3a, Leszczynki, Gdynia, pomorskie
- Otoczenie: osiedle bloków mieszkalnych, tereny zielone i rekreacyjne
- Na terenie inwestycji: plac zabaw, instalacja fotowoltaiczna, rowerownia
- W pobliżu przedszkole, szkoła podstawowa, restauracja, kawiarnia, apteka, przychodnia, przystanek autobusowy, supermarket, stacja skm, las
Opis nieruchomości
Zapraszamy do zapoznania się z ofertą 4-pokojowego mieszkania, składającego się z pokoju dziennego z aneksem kuchennym, trzech sypialni, łazienki, WC i tarasu. (...)
| Mieszkanie2.1.M01 | 51,29 m² | 1/17 | 3 |
| Mieszkanie | ||
|
||
| 2.1.M01 |
| Mieszkanie2.1.M02 | 37,70 m² | 1/17 | 2 |
| Mieszkanie | ||
|
||
| 2.1.M02 |
| Mieszkanie2.1.M03 | 72,88 m² | 1/17 | 4 |
| Mieszkanie | ||
|
||
| 2.1.M03 |
| Mieszkanie2.1.M04 | 70,70 m² | 1/17 | 4 |
| Mieszkanie | ||
|
||
| 2.1.M04 |
| Mieszkanie2.1.M05 | 58,32 m² | 1/17 | 3 |
| Mieszkanie | ||
|
||
| 2.1.M05 |
| Mieszkanie2.1.M06 | 37,94 m² | 1/17 | 2 |
| Mieszkanie | ||
|
||
| 2.1.M06 |
| Mieszkanie2.1.M07 | 36,75 m² | 1/17 | 2 |
| Mieszkanie | ||
|
||
| 2.1.M07 |
| Mieszkanie2.1.M08 | 39,16 m² | 1/17 | 2 |
| Mieszkanie | ||
|
||
| 2.1.M08 |
| Mieszkanie2.1.M09 | 31,58 m² | 1/17 | 1 |
| Mieszkanie | ||
|
||
| 2.1.M09 |
| Mieszkanie2.1.M10 | 54,23 m² | 1/17 | 3 |
| Mieszkanie | ||
|
||
| 2.1.M10 |
Biuro sprzedaży
58 500 01...
58 500 01 12











