Mieszkanie, ul. Bieszczadzka
Bieszczadzka, Wielki Kack, Gdynia, pomorskie
- 309 000 zł
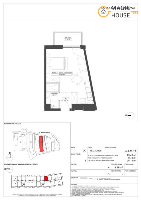
- 29,43 m²
- 10 499,49 zł/m²
Monika Solarska
Skontaktuj się
Mieszkanie, ul. Bieszczadzka
Bieszczadzka, Wielki Kack, Gdynia, pomorskie
zaktualizowane:
9 grudnia 2025
Mieszkanie, ul. Bieszczadzka
Zaktualizowane: 9 grudnia 2025
309 000 zł 29,43 m² 10 499,49 zł/m²
4/5
1
2026
przynależne na ulicy
deweloperski
Zobacz na mapie
Piętro:
4/5Liczba pokoi:
1Rok budowy:
2026Miejsce parkingowe:
przynależne na ulicyStan mieszkania:
deweloperskiSzczegóły ogłoszenia
- Typ oferty: kawalerka na sprzedaż
- Cena: 309 000 zł (10 499,49 zł/m²)
- Rynek: pierwotny (zobacz inne nowe mieszkania w Gdyni)
- Dostępne: listopad 2026
- Forma własności: własność
- Charakterystyka mieszkania: 29,43 m², 1 pokój, 1 łazienka; stan: deweloperski
- okna: plastikowe
- Budynek: blok mieszkalny; rok budowy: 2026 (blok w nowym budownictwie)
- winda, dostosowany do osób niepełnosprawnych
- Rozkład mieszkania: piętro 4/5, jednopoziomowe
- Powierzchnia dodatkowa: balkon
- Kuchnia: aneks kuchenny
- Media: ogrzewanie: miejskie
- opomiarowanie wody, opomiarowanie ciepła
- Internet, telefon, telewizja kablowa
- Świadectwo charakterystyki energetycznej: nie
- Bezpieczeństwo: domofon/wideofon, monitoring/kamery
- Miejsce parkingowe: przynależne na ulicy (1 miejsce parkingowe)
- Źródło: biuro nieruchomości: MAGIC HOUSE, zaktualizowane: 09.12.2025
- numer ogłoszenia: MG478419
Lokalizacja
- Adres: Bieszczadzka, Wielki Kack, Gdynia, pomorskie
- Otoczenie: las
- W pobliżu: szkoła podstawowa, przystanek autobusowy
Opis nieruchomości
1-pokojowe mieszkanie 29,43 m² | Gdynia Wielki Kack | W otoczeniu natury
Na sprzedaż funkcjonalne mieszkanie 1-pokojowe o powierzchni 29,43 m², położone w kameralnej inwestycji w południowej części Gdyni - dzielnica Wielki Kack.
Lokal stanowi doskonałą propozycję dla osób ceniących ciszę, kontakt z naturą oraz szybki dostęp do centrum miasta. (...)
730 509...
730 509 401

